Overview
- Chalet
- 4
- 3
- 2
- 120 m²
- 37850
Description
¡¡ NEW CONSTRUCTION – Completed construction ¡¡
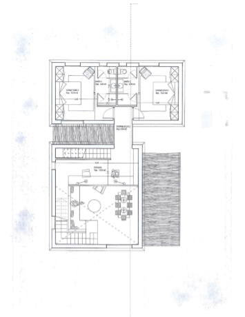
Detached house with swimming pool, distributed in several rooms and on 2 floors, projected on a plot of 400,00 m2. Ground floor: With a constructed area of 119.89m2, designed for both day and night areas. From the street you go up an external staircase to the entrance door of the house. It has a hall to access the living room where the staircase that connects the ground floor and the first floor. It poses a kitchen open to the living room. This plant also houses two bedrooms, two bathrooms and a storeroom. The rooms and bathrooms are accessed from a distributor that is separated from the kitchen by a sliding door. The storage room with exit to the exterior is located between the kitchen and the living room. First floor: With a constructed area of 79.40 m2, destined for night area, it has two bedrooms, a bathroom, a storage room and a games room. It is accessed from the ground floor staircase, which disembarks in the game room, and through a distributor you access the rooms, the bathroom and the storage room. The projected home will have a total built area of 199.29m2, an occupation of 119.89m2 corresponding to 29.97% of the plot’s surface area and the remaining 70.03% will go to landscaped areas, outdoor parking area and pool.
Details
Updated on March 12, 2026 at 9:31 pm-
Property ID 37850
-
Price €1,550,000
-
Property Size 120 m²
-
Land Area 400 m²
-
Bedrooms 4
-
Bathrooms 3
-
Garages 2
-
Year Built 05/31/2019
-
Property Type Chalet
-
Property Status For Sale
Address
Open on Google Maps-
Address: Santa Eulària des Riu, Balearic Islands, SpainSanta Eulària des Riu, Balearic Islands, Spain
-
City: Santa Eularia Des Riu
-
State/county: Balearic Islands
Mortgage Calculator
-
Down Payment
-
Loan Amount
-
Monthly Mortgage Payment
-
Property Tax
-
Home Insurance
-
PMI
-
Monthly HOA Fees
Contact Information
View ListingsSimilar Listings
- houzes



