Apartments in a house under construction in London.
- €682,000
Overview
- Apartment
- 2
- 65 m²
- 35607
Description
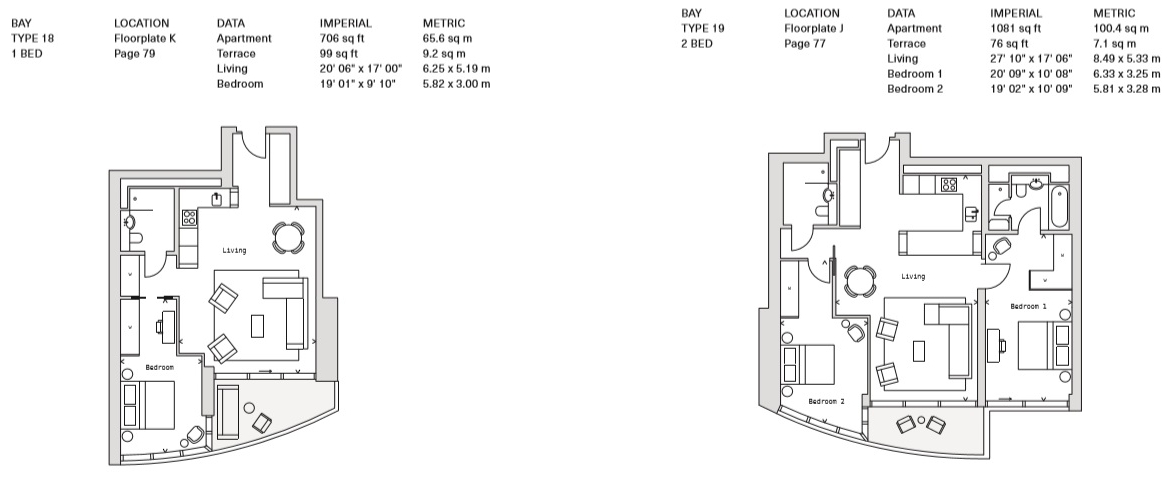
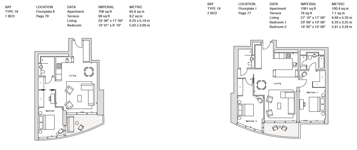
This house will be put into operation in 2020. At the moment there are apartments with 1, 2 and 3 bedrooms. The apartments use the most modern technologies and materials. Used for finishing natural materials (expensive wood, natural marble and other finishing stones, mother of pearl). Management of apartment systems (lighting, heating, blinds and Windows) is carried out with the help of a smart home system. High ceiling. Balconies or terraces. Square one-bedroom apartment – 65,6 sq. m. terrace 9.2 square meters The area of the apartment with two bedrooms-100,4 sq. m. terrace – 7,1 sq. m.The residential complex offers residents: security 24 hours a day, Concierge service, lobby, gym-pool, sauna and steam room, library and rooms for business meetings and events, landscape Park. The apartments are located in the business district of London – Canary Wharf. The Canary Wharf district is one of the most dynamically developing areas of the capital of great Britain, where the highest paid employees work in the country. Near the residential complex: business center with its shops, restaurants, bars and cafes, in the area 24 hours a day security (its security service in the area and video surveillance). Excellent transport links: metro station (Jubilee Line), DLR light metro line, in 2019 will be launched a new line (Elizabeth Line), all this makes it possible to get from the residential complex to the Central part of the capital in less than 20 minutes (10 minutes with the launch of a new branch). Nearby there is also a large shopping center, parks and walking area, lakes, the river Thames, supermarkets, restaurants (including Michelin stars), cafes and bars, sports clubs and beauty salons.The price of one-bedroom apartment is indicated. The cost of apartments with two bedrooms – from 750 000 pounds. The current price list is available on request. The documents are ready to deal.
Details
Updated on March 12, 2026 at 9:23 pm-
Property ID 35607
-
Price €682,000
-
Property Size 65 m²
-
Bedrooms 2
-
Year Built 2020
-
Property Type Apartment
-
Property Status For Sale
Address
Open on Google Maps-
Address: London, UKLondon, UK
-
City: London
-
State/county: England
Mortgage Calculator
-
Down Payment
-
Loan Amount
-
Monthly Mortgage Payment
-
Property Tax
-
Home Insurance
-
PMI
-
Monthly HOA Fees
Contact Information
View ListingsSimilar Listings
Trento, Baselga del Bondone 2-room apartment with view of the roe deer
- €275,000
- houzes







